4 модуля с 2 спальнями
Доброго дня! Заказчики прислали фотообзор, а мы спешим поделиться этой красотой с вами!
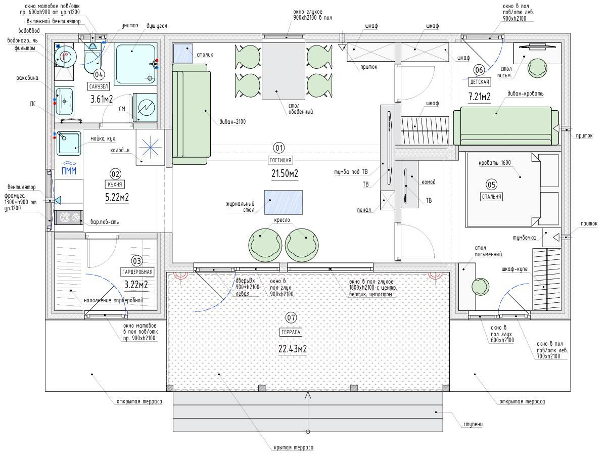
Дом сдан в сентябре 2024. Фактическая расстановка мебели, конечно, немного отличается от плана) на то он и план, чтобы его можно было поменять, как душа ляжет!
На бумаге — около 50 кв.м. внутренней площади, а по ощущениям — полноценный просторный дом. И каждый раз ловим себя на мысли: в голове это тяжело укладывается. В обычной квартире те же 50— это, как правило, двушка с одной спальней. А здесь — две изолированные комнаты, отдельная гостиная, кухня, прихожая. Почему так?
ol>
Метры не давят . И это один из главных плюсов загородного дома. Вероника и Александр, большая благодарность за фото и обратную связь! Очень стильно у вас получилось его обставить!
Проекты и цены -> Проекты и цены модульных домов
Отзывы реальных клиентов -> Отзывы о компании SPmodul | СПмодуль
Контакты: +79269166005
Наш telegram- канал Модульные дома SPmodul | индивидуальные и готовые проекты

Мы не можем публиковать рекламные тексты, даже при описании собственных домов, поэтому приводим только факты: 4 спальни, природное окружение, баня с кедровым чаном и большая терраса. Пожалуйста, ознакомьтесь и оцените сами.


Мы не можем публиковать рекламные тексты, даже при описании собственных домов, поэтому приводим только факты: 4 спальни, природное окружение, баня с кедровым чаном и большая терраса. Пожалуйста, ознакомьтесь и оцените сами.
Если есть желание посмотреть наши готовые дома, у нас в цеху их сейчас как раз 15) разных площадей! В начале мая они разъедутся по участкам к своим хозяевам. Следующая очередь полностью готовых домов будет только в конце июня
знаем, многие любят приезжать на более ранних стадиях каркас потрогать, дома в работе увидеть) у вас еще будет время, можно не торопиться). А на фото 4х модульный дом 50 кв.м. теплой площади.



Поделиться новостью
