Дом 50 кв.м. Обзор заказчика
Всем привет! Сегодня покажем дом, в котором главные хозяева — явно не люди)
На видео заказчица сама проводит экскурсию по своему четырехмодульному дому. Как же мы любим таких заказчиков!) Заходит внутрь — и её тут же встречает пёс Джон. Без его одобрения никак! А в спальне — вторая важная персона. Кошка Ева
Уже заняла кровать и всем своим видом показывает: место отличное, можно оставаться. Дом получился теплым и «живым». Видно, что всё обставлено с душой: свет, мебель, текстиль, мелкие детали
Отдельно хочется отметить камин — он здесь задает атмосферу! Если присмотреться к деталям, можно заметить ещё один важный момент. Розетки, выводы под бра, потолочные и настенные светильники — всё именно там, где это удобно конкретному заказчику. Кому-то такая розетка не нужна, а здесь без неё никак. Почти каждый наш реализованный проект — индивидуальный. С проектировщиком заранее согласовываются (помимо планировки, оконных и дверных проемов):
ul>
Чтобы дом был удобным сразу, без «потом переделаем». Большое спасибо Елене и Алексею за доверие и за такой тёплый обзор
em>А Джону и Еве — отдельный привет. Отличную территорию вы себе выбрали
И да, этот дом — с перспективой роста. В дальнейшем к нему добавится ещё один модуль и большая терраса!
Проекты и цены -> Проекты и цены модульных домов
Отзывы реальных клиентов -> Отзывы о компании SPmodul | СПмодуль
Контакты: +79269166005
Наш telegram- канал Модульные дома SPmodul | индивидуальные и готовые проекты

Мы не можем публиковать рекламные тексты, даже при описании собственных домов, поэтому приводим только факты: 4 спальни, природное окружение, баня с кедровым чаном и большая терраса. Пожалуйста, ознакомьтесь и оцените сами.


Мы не можем публиковать рекламные тексты, даже при описании собственных домов, поэтому приводим только факты: 4 спальни, природное окружение, баня с кедровым чаном и большая терраса. Пожалуйста, ознакомьтесь и оцените сами.
Если есть желание посмотреть наши готовые дома, у нас в цеху их сейчас как раз 15) разных площадей! В начале мая они разъедутся по участкам к своим хозяевам. Следующая очередь полностью готовых домов будет только в конце июня
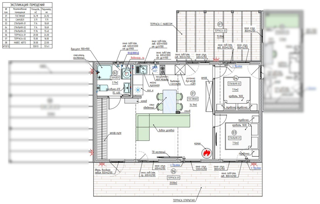
знаем, многие любят приезжать на более ранних стадиях каркас потрогать, дома в работе увидеть) у вас еще будет время, можно не торопиться). А на фото 4х модульный дом 50 кв.м. теплой площади.



Поделиться новостью
