Двухмодульный дом с возможностью расширения
Доброго дня! Представляем вашему вниманию двухмодульный дом
Вы можете заметить края оголовков свай - они торчат не просто так)
Этот дом с возможностью расширения! Сейчас это 2 габаритных модуля, а в перспективе по бокам прибавятся еще по одному негабаритному модулю (6 на 3м)
Проекты и цены -> Проекты и цены модульных домов
Отзывы реальных клиентов -> Отзывы о компании SPmodul | СПмодуль
Контакты: +79269166005
Наш telegram- канал Модульные дома SPmodul | индивидуальные и готовые проекты

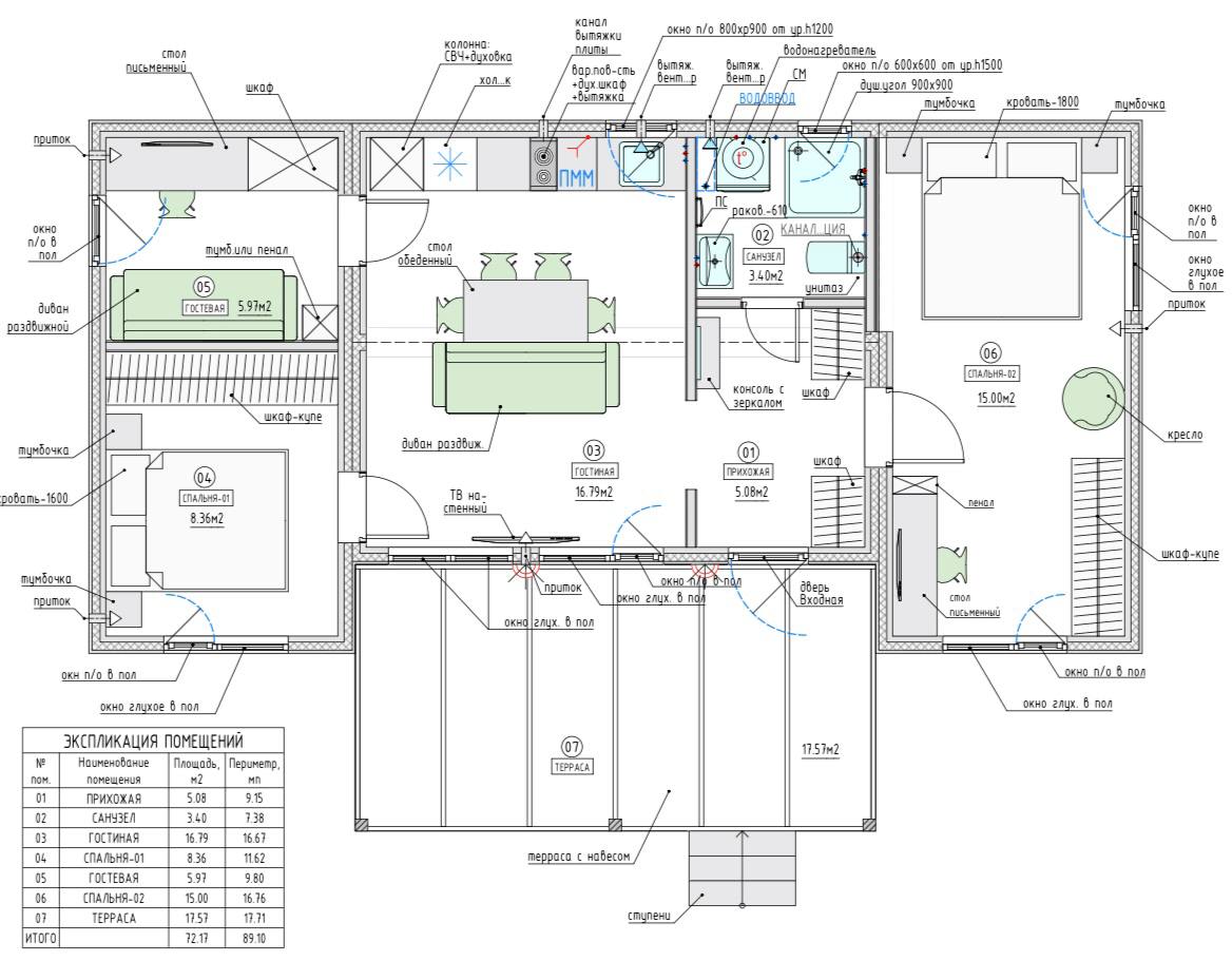
Мы не можем публиковать рекламные тексты, даже при описании собственных домов, поэтому приводим только факты: 4 спальни, природное окружение, баня с кедровым чаном и большая терраса. Пожалуйста, ознакомьтесь и оцените сами.


Мы не можем публиковать рекламные тексты, даже при описании собственных домов, поэтому приводим только факты: 4 спальни, природное окружение, баня с кедровым чаном и большая терраса. Пожалуйста, ознакомьтесь и оцените сами.
Если есть желание посмотреть наши готовые дома, у нас в цеху их сейчас как раз 15) разных площадей! В начале мая они разъедутся по участкам к своим хозяевам. Следующая очередь полностью готовых домов будет только в конце июня
знаем, многие любят приезжать на более ранних стадиях каркас потрогать, дома в работе увидеть) у вас еще будет время, можно не торопиться). А на фото 4х модульный дом 50 кв.м. теплой площади.



Поделиться новостью
