Модульные дома на берегу Горьковского водохранилища
Приветствуем! Вы знаете, что мы работаем в пределах 300 км от нашего производства. Это вся Московская область и частично соседние области. Но когда нас попросили поставить домики в такой шикарной локации, мы просто не смогли отказать! Посмотрите, как органично все смотрится! Это парк-отель Рассвет на берегу Горьковского водохранилища (Нижегородская область)
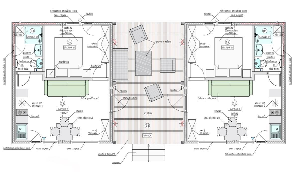
Планировка - по 2 двухмодульных дома и терраса посередине. Такие вот интересные дуплексы)
Ребята, следующим летом ждите нас в гости!
Проекты и цены -> Проекты и цены модульных домов
Отзывы реальных клиентов -> Отзывы о компании SPmodul | СПмодуль
Контакты: +79269166005
Наш telegram- канал Модульные дома SPmodul | индивидуальные и готовые проекты

Мы не можем публиковать рекламные тексты, даже при описании собственных домов, поэтому приводим только факты: 4 спальни, природное окружение, баня с кедровым чаном и большая терраса. Пожалуйста, ознакомьтесь и оцените сами.


Мы не можем публиковать рекламные тексты, даже при описании собственных домов, поэтому приводим только факты: 4 спальни, природное окружение, баня с кедровым чаном и большая терраса. Пожалуйста, ознакомьтесь и оцените сами.
Если есть желание посмотреть наши готовые дома, у нас в цеху их сейчас как раз 15) разных площадей! В начале мая они разъедутся по участкам к своим хозяевам. Следующая очередь полностью готовых домов будет только в конце июня
знаем, многие любят приезжать на более ранних стадиях каркас потрогать, дома в работе увидеть) у вас еще будет время, можно не торопиться). А на фото 4х модульный дом 50 кв.м. теплой площади.



Поделиться новостью
