Новый обзор! 3 модуля + модуль бани
Как вы уже знаете, почти всем нашим клиентам мы производим дома по индивидуальным проектам!
ul>
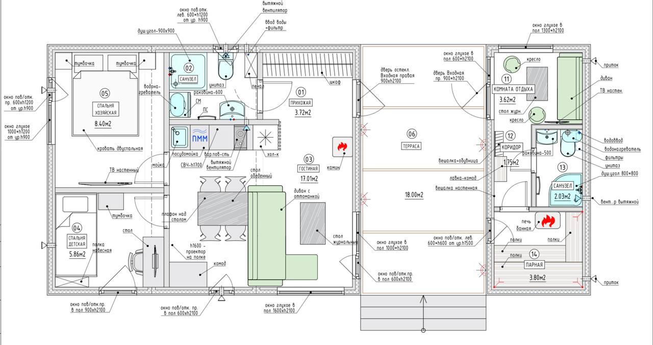
Тут у нас 3 модульный дом + 1 модульная баня. Соединены крытой террасой. Кажется, это идеально для небольшой дачи! Или арендного бизнеса)
Теплая площадь жилой части (сумма площадей комнат) - 38 кв.м. Модуль бани- 11,2 кв.м. Терраса 18 кв.м. Внешние габариты всего дома 14 на 6 м
Проекты и цены -> Проекты и цены модульных домов
Отзывы реальных клиентов -> Отзывы о компании SPmodul | СПмодуль
Контакты: +79269166005
Наш telegram- канал Модульные дома SPmodul | индивидуальные и готовые проекты

Мы не можем публиковать рекламные тексты, даже при описании собственных домов, поэтому приводим только факты: 4 спальни, природное окружение, баня с кедровым чаном и большая терраса. Пожалуйста, ознакомьтесь и оцените сами.


Мы не можем публиковать рекламные тексты, даже при описании собственных домов, поэтому приводим только факты: 4 спальни, природное окружение, баня с кедровым чаном и большая терраса. Пожалуйста, ознакомьтесь и оцените сами.
Если есть желание посмотреть наши готовые дома, у нас в цеху их сейчас как раз 15) разных площадей! В начале мая они разъедутся по участкам к своим хозяевам. Следующая очередь полностью готовых домов будет только в конце июня
знаем, многие любят приезжать на более ранних стадиях каркас потрогать, дома в работе увидеть) у вас еще будет время, можно не торопиться). А на фото 4х модульный дом 50 кв.м. теплой площади.



Поделиться новостью
